Hotel Oxygen
2009/2010
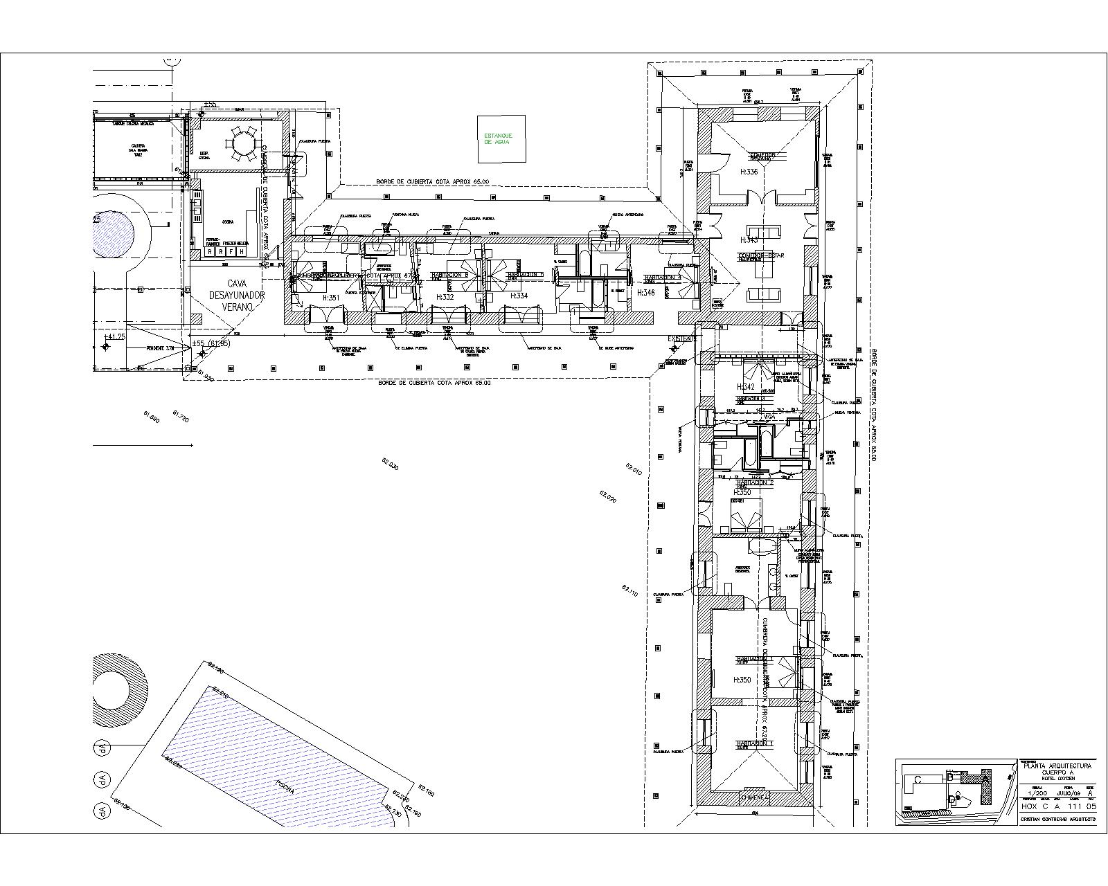
programa:
vivienda, hotel
ubicación:
San Fernando, VI Region Chile
tamaño:
1200m2
equipo:
Cristian Contreras T.
El proyecto de este hotel se desarrollo en base a una casa patronal construida en adobe en el interior de San Fernando (V Region), la casa patronal constituía el punto de partida y escencia del proyecto.
Producto del terremoto del año 2010 esta casa patronal quedo estructuralmente muy dañada y en vías a ser demolida, por lo que el proyecto junto con la casa se desvaneció.
programa:
vivienda, hotel
ubicación:
San Fernando, VI Region Chile
tamaño:
1200m2
equipo:
Cristian Contreras T.
El proyecto de este hotel se desarrollo en base a una casa patronal construida en adobe en el interior de San Fernando (V Region), la casa patronal constituía el punto de partida y escencia del proyecto.
Producto del terremoto del año 2010 esta casa patronal quedo estructuralmente muy dañada y en vías a ser demolida, por lo que el proyecto junto con la casa se desvaneció.
33







