Facultad de Estudios Urbanos
2015
CONCURSO
programa:
oficinas, docente
ubicación:
Campus PUC Lo Contador, Santiago
equipo:
Cristian Contreras
Emiliano Ruidiaz
Vicente Gutierrez
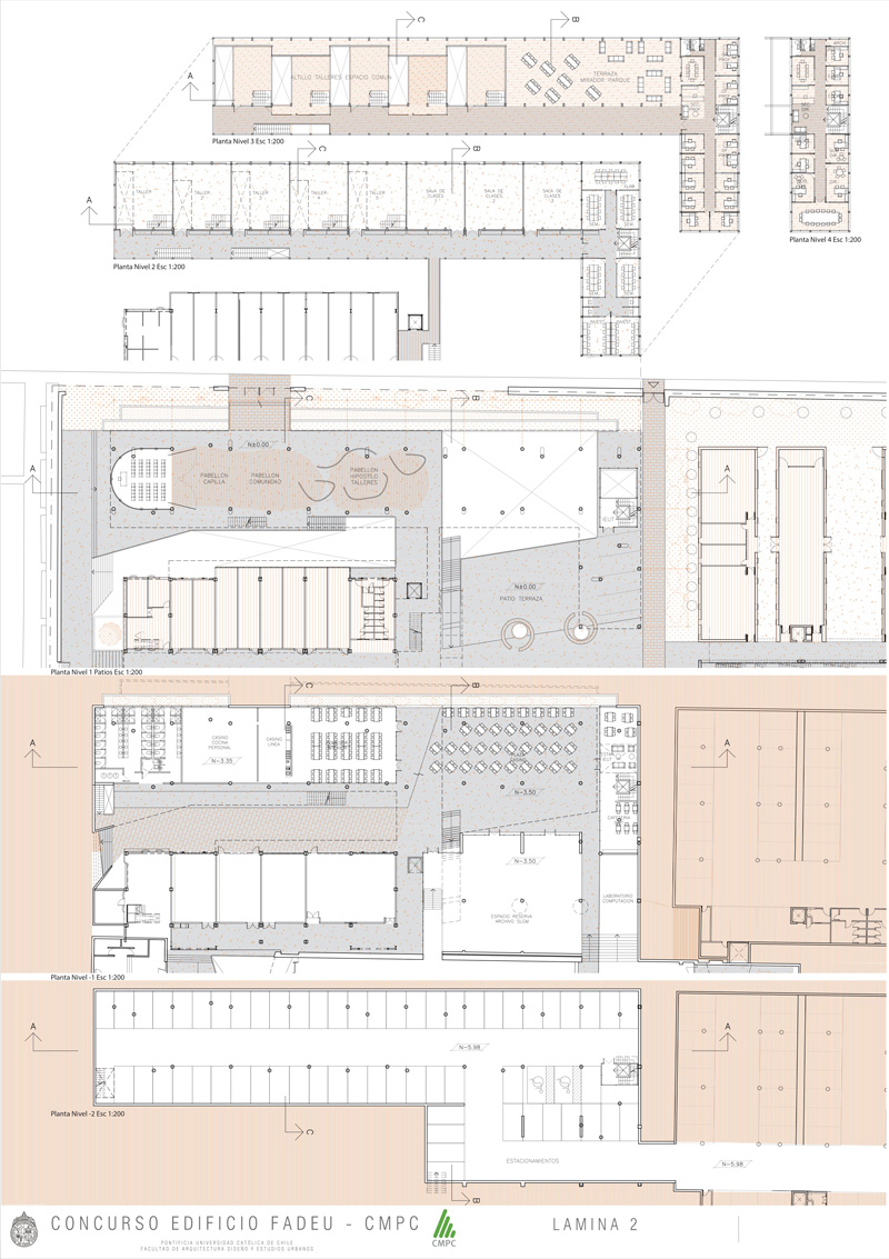
La propuesta responde a la necesidad de colocar una pieza que participe en el campus y que se conecte con la ciudad en su escala de barrio y peatonalidad del campus.
La estrategia fue liberar completamente el piso 1, el piso noble, elevando un volumen que se moldea con la pretensión de reflejar los dos grandes cuerpos programáticos del encargo: Talleres y IEUT; en busca de una multiplicación del suelo mediante dos grandes patios, uno en el piso noble en la relación campus-ciudad mediante un gran pabellón cubierto abierto a la comunidad y otro en el subsuelo dotando de un area de convergencia al tejido existente.
El volumen programático de talleres habita en la copa de los arboles a modo de un gran parrón armando un nuevo suelo de trabajo para mirar el cerro. Eel volumen de IEUT responde a las necesidades programáticas de oficinas mediante un cuerpo con presencia que participa en la explanada central del campus.
CONCURSO
programa:
oficinas, docente
ubicación:
Campus PUC Lo Contador, Santiago
equipo:
Cristian Contreras
Emiliano Ruidiaz
Vicente Gutierrez
La propuesta responde a la necesidad de colocar una pieza que participe en el campus y que se conecte con la ciudad en su escala de barrio y peatonalidad del campus.
La estrategia fue liberar completamente el piso 1, el piso noble, elevando un volumen que se moldea con la pretensión de reflejar los dos grandes cuerpos programáticos del encargo: Talleres y IEUT; en busca de una multiplicación del suelo mediante dos grandes patios, uno en el piso noble en la relación campus-ciudad mediante un gran pabellón cubierto abierto a la comunidad y otro en el subsuelo dotando de un area de convergencia al tejido existente.
El volumen programático de talleres habita en la copa de los arboles a modo de un gran parrón armando un nuevo suelo de trabajo para mirar el cerro. Eel volumen de IEUT responde a las necesidades programáticas de oficinas mediante un cuerpo con presencia que participa en la explanada central del campus.
113






